sint - jacobsmarkt
2012
gemengd gebruik / renovatie + nieuwbouw⠀⠀
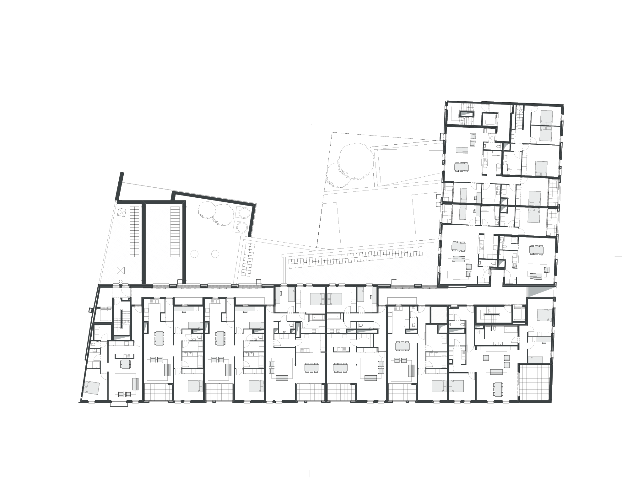
Het oorspronkelijk samengesteld bouwprogramma voor dit gebouwencomplex bestond uit de vernieuwbouw van een bestaande polikliniek, kantoren en vergaderzalen, uitgebreid met een auditorium, vakbibliotheek en een intern opleidingscentrum voor de Christelijke Mutualiteit. Deze functies werden verdeeld over drie niveaus en georganiseerd rondom twee grote patio’s. Op de vier bovenliggende verdiepingen werden 34 appartementen voorzien, sterk variërend in type en grootte.
In het ontwerp werd veel belang gehecht aan de onderlinge verhouding en relatie tussen deze zeer verschillende functies. Het project is gelegen in hartje Antwerpen en moest daarenboven rekening houden met de complexiteit van een compacte stedelijke context.
Sinds 2019 zijn de universiteitscampus ‘Sint-Jacob’ van de Faculteit Letteren van de KU Leuven en het Vlaams Gebarentaal Centrum (VGTC) in dit gebouw gehuisvest.concept
